
ASHLEE BARDOS

Lotus Console Table

The lotus console table is a design for a couple who just moved into their first home and want a functional designer style table for the front entrance. The request is that the table is a unique piece that is not only a piece of furniture but an architectural piece of art.
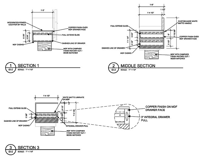
Mr. and Mrs. Spencer are lovers of nature. They are requesting a table that brings the beauty of nature indoors and sparks the interest of guests. Wishing to move the piece of furniture anywhere they go and be stored if needed. The couple wishes to grow old with this piece of furniture so minimal bending down to grab items on shelving is essential. The unit is 30” tall by 36” wide and 18” deep. They need somewhere to put their keys, a clean and tidy appearance, as well as open and closed storage. The couple would also like the ability to conceal valuables when they are not home.

.jpg)
ID-1
ID-2



